3-стаен – Варна, Център
- €169,990/332,472 лв.
Описание
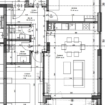
Имотен център Варна представя тристаен в Центъра (до Бизнес хотела)
Строителство: Тухла
Площ: 80кв.м.
Етаж: 4 от 11 (с два асансьора)
Разпределение: Г-образен коридор, всекидневна с излаз на тераса, отделна кухня, две спални, баня, отделно тоалетна, 3 килера/перални помещения. Към имота има и избено помещение 8,50кв.м.
Изложение: Югоизток
Възможност за направата на две мокри помещения с отделен килер / перално.
Сградата е с добре поддържан вход, професионален домоуправител и атрактивна локация – в близост до хотел ‘Голдън Тюлип’, търговски център ‘Фулмакс’ и на пешеходно разстояние от Катедралата.
За информация и оглед на тази оферта се обадете на 0877 935 798 – Росен Димитров
Детайли
-
ID на оферта 103304
-
Цена €169,990/332,472 лв.
-
Квадратура 80 m²
-
Спалня 0
-
Стая 0
-
Баня 0
-
Година на строеж 1991
-
Тип имот 3-стаен
-
Вид оферта Продава
Екстри
Подобни имоти
3-стаен – Варна, Възраждане 2
- €159,900/312,737 лв.
3-стаен – Варна, Левски
- €160,000/312,933 лв.
Луксозен Тристаен Апартамент Първи Наематели
- €2,200/4,303 лв.
3-стаен – Варна, Лятно кино Тракия
- €224,900/439,866 лв.
3-стаен – Варна, Левски
- €550/1,076 лв.
3-стаен – Варна, Цветен
- €214,000/418,548 лв.













