асансьор

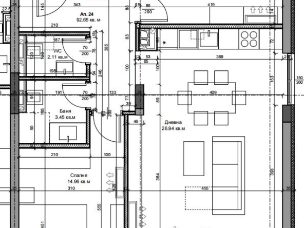
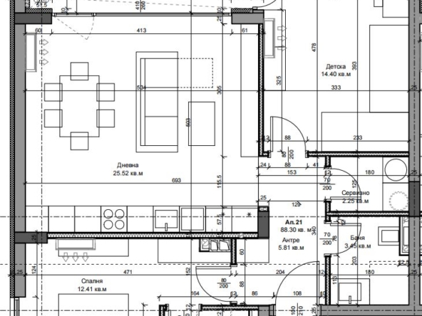
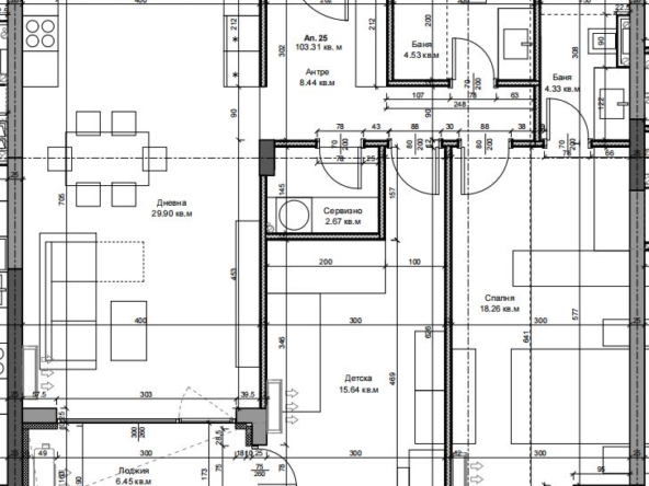
25 Имотa
подреди по:

сравни имотите

сравни имоти